Vragen of afspraak maken?

Stuur ons een bericht op Whatsapp

Woning

d’n Hof 45 Overloon

Wat kost deze woning per maand?

Specificaties

Vraagprijs: € 450.000 k.k.

  • Postcode: 5825 KZ
  • Woonoppervlakte: 107 m2
  • Perceeloppervlakte: 212 m2
  • Inhoud: 413 m3
  • Bouwjaar: 2018

Terug naar het overzicht

Omschrijving

Ben je op zoek naar een instapklare woning in een rustige en jonge woonwijk van Overloon? Dan is D’n Hof 45 precies wat je zoekt. Deze moderne twee-onder-een-kapwoning, gebouwd in 2018, combineert comfort, energiezuinigheid en praktische indeling op een fijne locatie.

Ligging en buitenruimte…
De woning ligt in een rustige, moderne wijk met een prettige sfeer en veel jonge gezinnen. Met een energielabel A ben je hier helemaal klaar voor de toekomst. Het perceel van 212 m² biedt voldoende buitenruimte, waarbij de tuin op het zuiden de hele dag door zon garandeert.
Een bijzonder pluspunt van deze woning is de afsluitbare oprit. Achter de houten poort kun je je auto veilig en uit het zicht parkeren. Via de achterom bereik je de zonnige tuin, compleet met een gezellig terras voorzien van zonnedoek en een praktische berging voor fietsen of tuingereedschap.

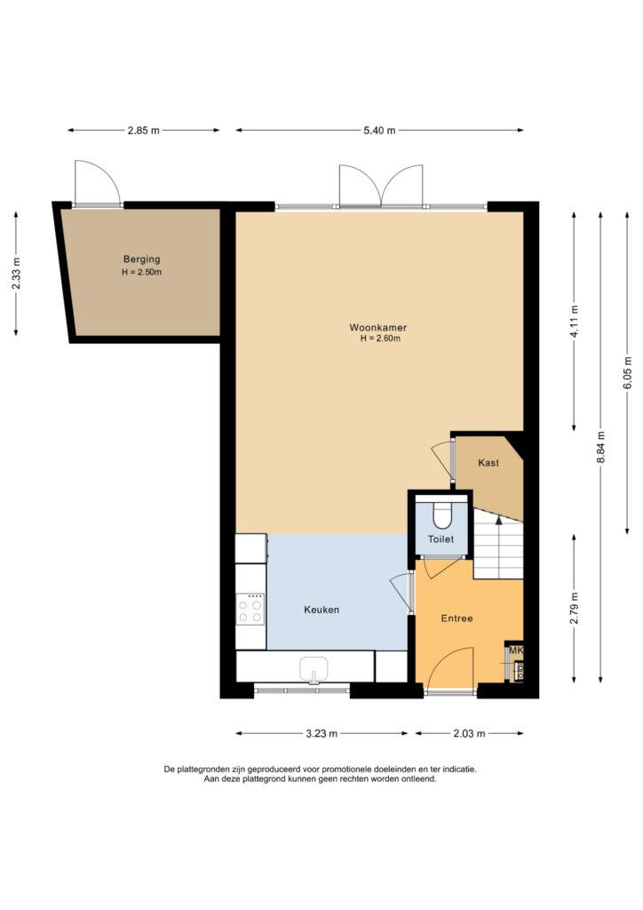
Begane grond…
Via de voordeur kom je binnen in de hal met toegang tot het toilet, de meterkast, de trap naar boven en de leefruimte. Aan de voorzijde ligt de moderne keuken, uitgerust met een oven, kookplaat en vaatwasser. Tijdens het koken heb je leuk uitzicht op de straat.
Aan de achterzijde bevindt zich de lichte woonkamer, met grote raampartijen en dubbele openslaande deuren naar de tuin. De handige trapkast biedt extra bergruimte, altijd fijn!

Eerste verdieping…
De eerste verdieping telt twee slaapkamers. De master bedroom is ruim opgezet en biedt plaats aan een tweepersoonsbed en grote kledingkast. De tweede slaapkamer is ideaal als kinderkamer, logeerkamer of thuiswerkplek.
De moderne badkamer is van alle gemakken voorzien: een douche, ligbad, toilet en wastafelmeubel.

Tweede verdieping…
De vaste trap brengt je naar de tweede verdieping: een royale open ruimte met volop mogelijkheden. Hier kun je eenvoudig een derde slaapkamer of hobbyruimte creëren. Ook vind je hier de witgoedaansluitingen en achter schuifdeuren is extra opbergruimte aanwezig.

Pluspunten op een rij:
– Bouwjaar 2018
– Energielabel A
– Afsluitbare oprit met houten poort
– Zonnige tuin op het zuiden met terras en berging
– Moderne keuken met inbouwapparatuur
– Lichte woonkamer met openslaande tuindeuren
– Moderne badkamer met bad én douche
– Ruime tweede verdieping met mogelijkheden voor extra kamer
– Rustige en kindvriendelijke wijk- Nabij voorzieningen, winkels en uitvalswegen

Kortom:
D’n Hof 45 biedt het ideale wooncomfort voor wie modern, rustig en praktisch wil wonen in het gezellige Overloon. Een jonge woning met alle voordelen van nieuwbouw, maar zonder het wachten!

Kenmerken

Aantal slaapkamers3
Aantal kamers5
Bouwjaar2018
EnergielabelA

Oppervlakte en inhoud

Woonoppervlakte107 m²
Inhoud413m³
Perceeloppervlakte212 m²

Locatie

Contact

Stuur ons een bericht

Heb je een vraag? Stuur ons een bericht of neem telefonisch contact met ons op.

043 204 15 43 info@vindmakelaardij.nl 0478 70 05 10
  • Dit veld is bedoeld voor validatiedoeleinden en moet niet worden gewijzigd.
Je gebruikt een verouderde webbrowser

Deze website maakt gebruik van moderne technieken die niet worden ondersteund door jouw webbrowser. Update mijn webbrowser

×